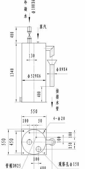
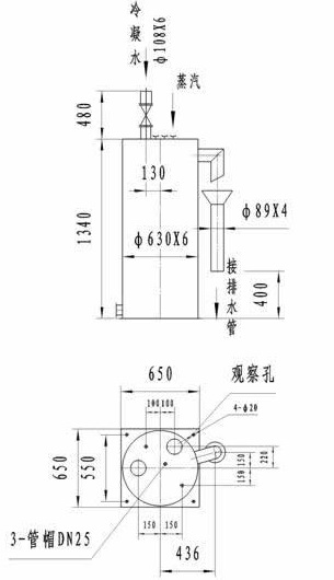
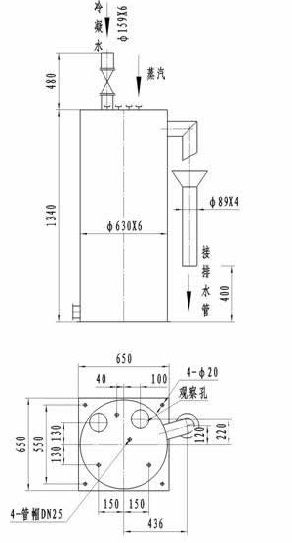
1、本排水器分為二室、三室、四室三種結構,適用于中、低壓煤氣加壓機后的煤氣管道,計算壓力低于15000、25000、35000Pa的各種煤氣管道。
2、排水器不設固定給水管,采用在觀察孔處定期檢查給水的辦法,次開工灌水時,需打開頂蓋上的DNl″管帽排放空氣。
3、插入敝開室的DNl″蒸汽管,視南北方地區(qū)氣候條件決定是否需要接上外部蒸汽管,南方地區(qū)不接蒸汽管時需用管帽蓋上。
4、排水器兩個室水封總高度2040mm,水容積為0.251m3,水位高度1200mm,
5、排水器三個室水封總高度3060mm,水容積為0.376m3, 水位高度1200mm,
6、排水器三個室水封總高度4060mm,水容積為0.376m3, 水位高度1200mm。























